• Inicio
  • Casa Olmos en Chichí Suárez
Casa Olmos en Chichí Suárez
Vendido

Casa Olmos en Chichí Suárez

Desde: $2,595,000
#VF2602
Casa Olmos en Chichí Suárez
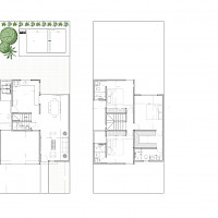
  • 164m2 de construcción
  • 198m2 de terreno
  • 2 plantas
  • 3 habitaciones
  • 3 baños
Agregar a favoritos
Descripción

Preventa de casa en el complejo Olmos, ubicada a 15 minutos del anillo periférico en donde encontraremos centros comerciales como Plaza Altabrisa, supermercados, colegios de prestigio y todos los servicios inmediatos que nos ofrece la ciudad.

Este modelo se caracteriza por contar con tres amplias habitaciones en planta alta y una piscina en el área del jardín.

Es una propiedad ideal para aquellos inversionistas que buscan estar cerca de los mejores sitios de la ciudad.

*** Información sujeta a cambio de precios, disponibilidad, fecha de entrega y adicionales sin previo aviso.

*** Perspectivas orientativas, precio no incluye mobiliario ni decoración.

*** Precio no incluye gastos notariales e impuestos de adquisición.

  • Sala-Comedor
  • Cocina
  • Baño de visitas
  • Piscina
  • Área de jardín
  • Área de lavado
  • Estacionamiento techado Capacidad 2 vehículos
  • Habitación principal con baño y clóset vestidor
  • Habitación 1 con baño y clóset
  • Habitación 2 con baño y clóset
  • Gavetas en cocina Inferiores
  • Fijos de cristal para regaderas

Propiedades sugeridas

¿Cómo podemos ayudarte?

Contáctanos

Ubicación: Calle 18 #107 INT. 1 por 27 y 29 Col. México, 97125 Mérida, Yuc.

Alianzas