Departamento en Aria Country Towers-Altabrisa, mod. B
Preventa En Aria en Country Towers - Altabrisa

Departamento en Aria Country Towers-Altabrisa, mod. B

Desde: $21,007,840
#VF4289
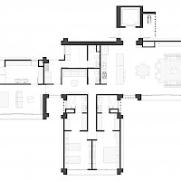
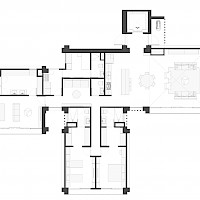
Departamento en Aria Country Towers-Altabrisa, mod. B
  • 249m2 de construcción
  • 1 planta
  • 3 habitaciones
  • 3 baños
  • Entrega: Diciembre 2028
Agregar a favoritos
Descripción

Aria es la tercera y última torre que junto con Aqua y Terra conforman el desarrollo Country Towers, situado al norte de la ciudad dentro del anillo periférico, en la colonia Altabrisa, el proyecto está conformado por 77 departamentos, de 2,3 y 4 habitaciones, distribuídos en 27 niveles que cuentan con acceso controlado, seguridad y amenidades tanto propias como compartidas con las otras torres. Gracias a su ubicación, Aria contará con todos los servicios a escasos pasos del proyecto, como son: escuelas, universidades, centros comerciales, restaurantes, tiendas de autoservicio, entre otros. 

El modelo B se caracteriza por tener tres habitaciones cada una con baño propio, además de un baño para el área social y una sala de T.V.

Una opción ideal para parejas o inversionistas que deseen una opción de departamento dentro del anillo periférico, que pueda brindar cercanía a todos los servicios.

*** Información sujeta a cambio de precios, disponibilidad, fecha de entrega y adicionales sin previo aviso.

*** Perspectivas orientativas, precio no incluye mobiliario ni decoración.

*** Precio no incluye gastos notariales e impuestos de adquisición.

  • Terraza
  • Rooftop
  • Infinity Pool
  • Jacuzzi
  • Bar
  • Asoleaderos
  • Restaurante
  • Sky Lounge
  • Gimnasio
  • Salón de eventos
  • Área de yoga
  • Pilates
  • Spa
  • Sauna y vapor
  • Vestidores
  • Salón de Masajes
  • Coworking
  • Centro de negocios
  • Concierge
  • Lobby
  • Área de asadores
  • Ludoteca
  • Junior´s club
  • Área de juegos infantiles
  • Biblioteca
  • Cafetería
  • Área de mascotas
  • Estacionamiento
  • Sala-Comedor
  • Cocina con barra desayunadora
  • Baño de visitas
  • Habitación principal con baño y clóset vestidor
  • Habitación 1 con baño y clóset vestidor
  • Habitación 2 con baño y clóset vestidor
  • Sala de TV
  • Cuarto de servicio con baño
  • Estacionamiento Capacidad 1 vehículo
  • Parrilla De gas
  • Horno De gas
  • Campana
  • Refrigerador

Propiedades sugeridas

¿Cómo podemos ayudarte?

Contáctanos

Ubicación: Calle 18 #107 INT. 1 por 27 y 29 Col. México, 97125 Mérida, Yuc.

Alianzas