Departamento en Qaanai Centro, mod. E
Preventa En Qaanai

Departamento en Qaanai Centro, mod. E

Desde: $11,113,508
#VE3540
Departamento en Qaanai Centro, mod. E
  • 177m2 de construcción
  • 2 plantas
  • 3 habitaciones
  • 3 baños
  • Entrega: Noviembre 2025
Agregar a favoritos
Descripción

Departamentos Qaanai, un proyecto que cuenta con amenidades y acceso controlado, caracterizado por ser único en su tipo, al estar situado en un punto estratégico de la ciudad a solo unos pasos de Paseo de Montejo y escasos minutos del Centro Histórico de la Ciudad.

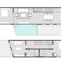
Este modelo se caracteriza por estar distribuido en 2 niveles, en planta baja tiene piscina privada una habitación con baño; y en segundo nivel, dos habitaciones con baño cada una y una terraza

Una propiedad ideal para aquellos que buscan un retiro en un entorno consolidado, rodeados de los puntos más emblemáticos de la ciudad; y también, para aquellos inversionistas que desean una opción diferente y atractiva en el mercado para colocar a la renta.

*** Información sujeta a cambio de precios, disponibilidad, fecha de entrega y adicionales sin previo aviso.

*** Perspectivas orientativas, precio no incluye mobiliario ni decoración.

*** Precio no incluye gastos notariales e impuestos de adquisición.

  • Acceso controlado
  • Lobby
  • Concierge
  • Biblioteca
  • Coworking
  • Gimnasio
  • Salón de usos múltiples
  • Elevadores
  • Piscina
  • Asoleaderos
  • Hamaca Garden
  • Áreas verdes
  • Sala-Comedor
  • Cocina con barra desayunadora
  • Habitación 1 con baño y clóset
  • Terraza
  • Piscina
  • Habitación 2 con baño y clóset
  • Habitación con baño/Estudio
  • Terraza
  • Parrilla eléctrica
  • Campana
  • Calentador
  • Aires acondicionados En habitaciones

Propiedades sugeridas

¿Cómo podemos ayudarte?

Contáctanos

Ubicación: Calle 18 #107 INT. 1 por 27 y 29 Col. México, 97125 Mérida, Yuc.

Alianzas