Vendido En Sereniti Tamara

Master penthouse en Sereniti en Tamara, mod. E

#VF2459
Desde: $13,625,279
Master penthouse en Sereniti en Tamara, mod. E
  • 402m2 de construcción
  • 2 plantas
  • 3 habitaciones
  • 4 baños
    Agregar a favoritos
    Descripción

    Sereniti es un complejo vertical privado y exclusivo que se encuentra dentro de la privada Tamara. La sub privada constará de 113 departamentos divididos en dos torres con amenidades propias como lobby, piscina, terraza y demás amenidades como parques y seguridad de Tamara.

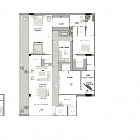
    El master penthouse modelo E se caracteriza por tener un family room y tres habitaciones en planta baja, además de un rooftop con sala-comedor, baño completo y amplia piscina, así como tener la opción de estar en los niveles ocho y nueve.

    La privada es ideal inversionistas que deseen un estilo de vida armónico y natural, en un entorno urbanístico sustentable con amenidades de primer nivel, cerca de los mejores servicios de la ciudad.

    *** Información sujeta a cambio de precios, disponibilidad, fecha de entrega y adicionales sin previo aviso.

    *** Perspectivas orientativas, precio no incluye mobiliario ni decoración.

    *** Precio no incluye gastos notariales e impuestos de adquisición.

    • Sala-Comedor
    • Bar
    • Cocina con isla
    • Alacena
    • Baño de visitas
    • Terraza
    • Habitación principal con baño y clóset vestidor
    • Habitación 1 con baño y clóset vestidor
    • Habitación 2 con baño y clóset vestidor
    • Family Room
    • Cuarto de servicio con baño
    • Clóset de blancos
    • Estacionamiento techado Capacidad 2 vehículos
    • Sala
    • Comedor
    • Bar
    • Piscina
    • Baño completo
    • Gavetas en cocina
    • Parrilla eléctrica
    • Campana
    • Fijos de cristal para regaderas
    • Gavetas en baño Bajo lavabo
    • Aires acondicionados En habitaciones y sala-comedor
    • Hidroneumático
    • Clóset vestido
    • Lobby Con control de acceso
    • Terraza
    • Gimnasio
    • Cancha de padel
    • Coworking
    • Lounge bar
    • Motor Lobby
    • Conserje
    • Asoleadero
    • Piscina
    • Área de asadores Y parrillas
    • Áreas verdes
    • Estacionamiento techado
    • Estacionamiento de visitas
    • Acceso controlado
    • Caseta de vigilancia 24/7
    • Bardas perimetrales Electrificadas
    • Cámaras de seguridad
    • Parque Social
    • Parque Infantil
    • Parque Para jóvenes
    • Parque para mascotas
    • Parque Deportivo
    • Parque Eco-arqueológico
    • Área Comercial

    Propiedades sugeridas

    ¿Cómo podemos ayudarte?

    Contáctanos

    Ubicación: Calle 18 #107 INT. 1 por 27 y 29 Col. México, 97125 Mérida, Yuc.

    Alianzas