Residencia en Plenum, mod. Blanca 56
- 221m2 de construcción
- 280m2 de terreno
- 2 plantas
- 3 habitaciones
- 3 baños
Descripción
Preventa de residencia en Plenum Residencial, un desarrollo privado que cuenta con seguridad 24/7, acceso controlado y diversas amenidades, se encuentra en Cholul a 10 minutos del anillo periférico al norte de la ciudad, una zona que está en constante crecimiento y que en su entorno inmediato se ubican desarrollos del mismo nivel.
El modelo Blanca 56 se caracteriza por contar con tres habitaciones, una de ellas en planta baja para mayor comodidad.
Esta opción es ideal para inversionistas y para todos aquellos que buscan vivir en una privada pequeña con seguridad.
*** Información sujeta a cambio de precios, disponibilidad y fecha de entrega sin previo aviso.
*** Fotografías reales de la casa muestra incluye adicionales con costo extra.
*** Precio no incluye gastos notariales e impuestos de adquisición.
- Pórtico de acceso
- Acceso controlado
- Seguridad 24/7
- Terraza
- Coworking
- Gimnasio
- Área de juegos infantiles
- Piscina para adultos y niños
- Carril de nado
- Pabellón de usos múltiples
- Parque para mascotas
- Área de yoga
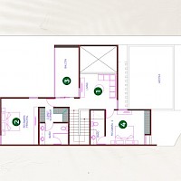
- Sala-Comedor
- Cocina
- Baño completo
- Habitación 1 con clóset
- Terraza
- Piscina
- Área de jardín
- Área de lavado
- Estacionamiento no techado Capacidad 2 vehículos techado
- Habitación principal 2 con baño y clóset vestidor
- Habitación 1 con baño y clóset
- Family room
- Terraza
¡Hola!
¡Hola! ¿en qué te podemos ayudar?
Solicitar información Agregar a favoritoso llamarnos 999 635 81 00
Busca propiedades similares
Propiedades sugeridas
-
Venta2 Plantas
3 Recámaras$4,415,000
Notas sobre Casa en Privada Albarella, mod. D
-
Venta2 Plantas
3 Recámaras$4,295,000
Notas sobre Casa en Privada Albarella, mod. C
-
Venta1 Planta
3 Recámaras$4,370,000
Notas sobre Casa en Privada Albarella, Mod. A
-
Preventa2 Plantas
4 Recámaras$5,130,000
Notas sobre Residencia en Macora, mod. C1
-
Venta2 Plantas
3 Recámaras$4,700,000
Notas sobre Casa Ceres Homes, Dzityá
-
Preventa2 Plantas
3 Recámaras$4,292,000
Notas sobre Casa en Praderas del Mayab, mod. San Diego
-
Preventa2 Plantas
3 Recámaras$4,426,000
Notas sobre Casa en Praderas del Mayab, mod. Kan
-
Preventa2 Plantas
3 Recámaras$4,336,000
Notas sobre Casa en Praderas del Mayab, mod. Dupa
-
Preventa2 Plantas
4 Recámaras$4,504,000
Notas sobre Casa en Praderas del Mayab, mod. Pos
-
Preventa2 Plantas
3 Recámaras$4,511,000
Notas sobre Casa en Praderas del Mayab, mod. Cubica
-
Preventa2 Plantas
3 Recámaras$4,963,000
Notas sobre Casa en Praderas del Mayab, mod. Boste
-
Preventa2 Plantas
3 Recámaras$4,800,000
Notas sobre Residencia en Tamora, mod. 166
-
Venta2 Plantas
3 Recámaras$4,950,000
Notas sobre Villa en Las Sabinas, Benito Juárez Norte
-
Preventa2 Plantas
3 Recámaras$4,550,000
Notas sobre Residencia en Dzityá. mod. 3
-
Preventa2 Plantas
4 Recámaras$4,350,000
Notas sobre Casa en Dzityá, mod. Yaaxché
-
Venta3 Plantas
2 Recámaras$4,401,152
Notas sobre Residencia en Patio Carey, mod. Nardo
-
Venta2 Plantas
3 Recámaras$4,340,000
Notas sobre Casa en Nadira, mod. Dom 20
-
Preventa2 Plantas
4 Recámaras$5,100,000
Notas sobre Residencia en Altozano, mod. Océano 66
-
Preventa2 Plantas
3 Recámaras$4,400,000
Notas sobre Casa en Emana, mod. Jardín
-
Preventa2 Plantas
4 Recámaras$5,066,000
Notas sobre Residencia en Adara Temozón, mod. 210
-
Preventa2 Plantas
3 Recámaras$5,091,000
Notas sobre Residencia en Adara Temozón, mod. 224
-
Venta2 Plantas
3 Recámaras$4,665,000
Notas sobre Residencia en Silvesta, mod. Silveria
-
Venta2 Plantas
3 Recámaras$4,500,000
Notas sobre Residencias en Tamora, mod. R
-
Venta2 Plantas
3 Recámaras$4,627,000
Notas sobre Residencia en Verna, mod. 2 pisos
-
Venta2 Plantas
3 Recámaras$5,150,000
Notas sobre Residencia en Plenum Cholul, mod. Mantra 55
-
Preventa2 Plantas
3 Recámaras$4,490,000
Notas sobre Residencia en Altozano, mod. Valencia 55
-
Preventa2 Plantas
3 Recámaras$4,550,000
Notas sobre Casa en Nadira, mod. Mónaco
-
Venta1 Planta
3 Recámaras$4,435,000
Notas sobre Residencia en Oviedo Cholul, mod. Chaká
-
Venta2 Plantas
3 Recámaras$4,405,000
Notas sobre Residencia en Oviedo Cholul, mod. Tzalam
-
Preventa2 Plantas
3 Recámaras$4,970,000
Notas sobre Residencia en Solea Cholul, mod. Kira
-
Preventa2 Plantas
3 Recámaras$4,990,000
Notas sobre Residencia en Solea Cholul, mod. Halia
-
Venta2 Plantas
3 Recámaras$4,575,000
Notas sobre Casa en Nadira, mod. Rubí 56
-
Venta2 Plantas
3 Recámaras$5,150,000
Notas sobre Villa en Marea Temozón, mod. 3 hab
-
Venta2 Plantas
3 Recámaras$4,733,806
Notas sobre Residencia en Silvesta, mod. 72
-
Venta2 Plantas
3 Recámaras$4,850,000
Notas sobre Residencia en Zendera, mod. 116
-
Venta2 Plantas
3 Recámaras$4,850,000
Notas sobre Residencia en Zendera, mod. 117
-
Venta1 Planta
3 Recámaras$4,850,000
Notas sobre Residencia en Morera, mod. 30
-
Venta2 Plantas
3 Recámaras$4,400,000
Notas sobre Casa en Nadira, mod. Leo 10a
-
Venta2 Plantas
3 Recámaras$4,400,000
Notas sobre Casa en Nadira, mod. Leo 49a
-
Venta2 Plantas
3 Recámaras$4,800,000
Notas sobre Residencia en Zendera, mod. 200
-
Venta2 Plantas
3 Recámaras$4,300,000
Notas sobre Residencia en Tamora, mod. 238
-
Preventa2 Plantas
3 Recámaras$5,106,000
Notas sobre Residencias en Alma Cholul, mod. 2
-
Venta2 Plantas
3 Recámaras$4,500,000
Notas sobre Residencias en Zenara en Xcanatún, mod. Atessa
-
Venta2 Plantas
3 Recámaras$4,800,000
Notas sobre Residencias en Zenara en Xcanatún-Cholul, mod. Greta
-
Venta2 Plantas
4 Recámaras$5,100,000
Notas sobre Residencias en Zenara en Xcanatún-Cholul, mod. Sedona
-
Preventa2 Plantas
3 Recámaras$4,440,000
Notas sobre Residencia en Zendera, mod. D-3 hab
-
Preventa2 Plantas
4 Recámaras$4,990,000
Notas sobre Residencia en Zendera, mod. D-4 hab
-
Preventa2 Plantas
4 Recámaras$4,990,000
Notas sobre Residencia en Morera, mod. D-4 hab
-
Venta2 Plantas
3 Recámaras$4,350,000
Notas sobre Residencia en Fiora, mod. 4
-
Preventa2 Plantas
3 Recámaras$4,975,000
Notas sobre Residencia en Zentura, mod. Vicaria 26
-
Preventa2 Plantas
4 Recámaras$4,650,000
Notas sobre Residencias en Xcanatún mod. 71 y 72
-
Preventa2 Plantas
3 Recámaras$4,700,000
Notas sobre Casa en Nadira, mod. Alaia
-
Venta2 Plantas
3 Recámaras$4,590,000
Notas sobre Residencias en Zenara Xcanatún, mod. Luca
-
Preventa2 Plantas
3 Recámaras$4,500,000
Notas sobre Residencia en Aire Puro, mod. 5
-
Venta2 Plantas
3 Recámaras$4,380,000
Notas sobre Residencia en Tamora, mod. 23
-
Venta1 Planta
3 Recámaras$4,695,000
Notas sobre Residencia en Soluna, mod. Orion 9
-
Venta1 Planta
3 Recámaras$4,726,000
Notas sobre Casa en Praderas del Mayab, mod. Cozumel
-
Venta1 Planta
3 Recámaras$4,980,000
Notas sobre Casa en Cholul, mod. Vita
-
Preventa2 Plantas
4 Recámaras$5,100,000
Notas sobre Residencia en Altozano, mod. Fogata 159
-
Preventa2 Plantas
3 Recámaras$4,850,000
Notas sobre Residencia en Dzityá, mod. Aura