• Inicio
  • Casa en Conkal 68, mod. D
Casa en Conkal 68, mod. D
Vendido

Casa en Conkal 68, mod. D

Desde: $3,100,000
#VF2931
Casa en Conkal 68, mod. D
  • 177m2 de construcción
  • 367m2 de terreno
  • 2 plantas
  • 3 habitaciones
  • 3 baños
Agregar a favoritos
Descripción

Casa en preventa en Conkal 68, ubicada en la zona de Conkal, a 15 minutos del anillo periférico y todos los servicios que nos ofrece el entorno. El desarrollo estará conformado por 68 viviendas con servicios como energía eléctrica, banquetas, calles pavimentadas, señalamientos, etc.

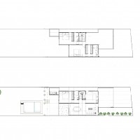
Este modelo se caracteriza por tener una habitación en planta baja y dos en el segundo nivel, además de una amplia piscina.

Esta propiedad se recomienda para inversionistas que deseen espacios cómodos y estar rodeados de un entorno natural y seguro.

*** Información sujeta a cambio de precios, disponibilidad, fecha de entrega y adicionales sin previo aviso.

*** Perspectivas orientativas, precio no incluye mobiliario ni decoración.

*** Precio no incluye gastos notariales e impuestos de adquisición.

  • Sala-Comedor
  • Cocina
  • Alacena
  • Baño completo
  • Habitación 1 con clóset
  • Piscina
  • Área de jardín
  • Área de lavado
  • Estacionamiento techado Capacidad 2 vehículos
  • Habitación principal con baño y clóset vestidor
  • Habitación 2 con baño y clóset
  • Gavetas en cocina Inferiores
  • Fijos de cristal para regaderas

Propiedades sugeridas

¿Cómo podemos ayudarte?

Contáctanos

Ubicación: Calle 18 #107 INT. 1 por 27 y 29 Col. México, 97125 Mérida, Yuc.

Alianzas