• Inicio
  • Casa en Sanzara Residencial, mod. 2
Casa en Sanzara Residencial, mod. 2
Preventa

Casa en Sanzara Residencial, mod. 2

Desde: $3,100,000
#VE3225
Casa en Sanzara Residencial, mod. 2
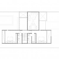
  • 188m2 de construcción
  • 300m2 de terreno
  • 2 plantas
  • 3 habitaciones
  • 3 baños
  • Entrega: Octubre 2023
Agregar a favoritos
Descripción

Casa en Sanzara Residencial, un desarrollo privado con acceso controlado ubicado en la zona de Conkal a 15 minutos del anillo periférico y de todos los servicios necesarios para la vida cotidiana.

Esta propiedad se caracteriza por su diseño arquitectónico en donde una parte del área social se encuentra a doble altura, y nos ofrece una habitación cómoda en planta baja.

Una opción recomendada para familias que deseen estar cerca de la ciudad, pero en un entorno lejos del ruido de la ciudad, que les brinde seguridad y tranquilidad.

*** Información sujeta a cambio de precios, disponibilidad y fecha de entrega sin previo aviso.

*** Perspectivas orientativas, precio no incluye mobiliario ni decoración.

*** Precio no incluye gastos notariales e impuestos de adquisición.

  • Acceso controlado
  • Seguridad 24/7
  • Áreas verdes
  • Pista Jogging
  • Área de asadores
  • Sala-Comedor
  • Cocina con barra desayunadora
  • Terraza
  • Área de jardín
  • Piscina
  • Cuarto de servicio con baño
  • Estacionamiento techado Capacidad 2 vehículos
  • Habitación principal con clóset vestidor, baño y balcón
  • Habitación 1 con baño y clóset Con balcón
  • Habitación 1 con balcón, clóset y baño Con balcón

Propiedades sugeridas

¿Cómo podemos ayudarte?

Contáctanos

Ubicación: Calle 18 #107 INT. 1 por 27 y 29 Col. México, 97125 Mérida, Yuc.

Alianzas