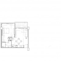
Departamento en Arthouse, mod. 1 hab
- 71m2 de construcción
- 1 planta
- 1 habitación
- 1 baño
Descripción
Preventa de departamentos en el desarrollo Arthouse que estará en la zona de Altabrisa, al norte de Mérida a escasos minutos de plazas comerciales, escuelas, hospitales y desarrollos de prestigio.
Arthouse estará conformado de dos torres con 160 unidades y una colección de arte de más de 300 obras, residencias para artistas, cine, teatro, salón de eventos como parte de sus amenidades exclusivas para residentes y restaurantes de autor, mercado de arte y diseño y spa como amenidades abiertas al público en general. Este modelo se caracteriza por contar con una amplia habitación, así como una terraza techada y otra al aire libre.
Arthouse es ideal para las personas que desean vivir en un desarrollo que mezcle belleza, gastronomía, libertad y creatividad en una zona con de alta plusvalía y
*** Información sujeta a cambio de precios, disponibilidad, fecha de entrega y adicionales sin previo aviso.
*** Perspectivas orientativas, precio no incluye mobiliario ni decoración.
*** Precio no incluye gastos notariales e impuestos de adquisición.
- Gimnasio
- Cine
- Piscina De 40m2
- Área de juegos infantiles
- Sala de juegos
- Salón de eventos
- Galería de arte
- Parque para mascotas
- Oficinas administrativas
- Residencia para artistas
- Lounge bar
- Teatro
- Cabañas
- Bicicletas eléctricas
- Cava
- Coworking
- Biblioteca
- Vestíbulo
- Salón de eventos Para adultos
- Restaurante De autor
- Spa
- Mercado de arte y diseño
- Sala-Comedor
- Cocina
- Habitación 1 con baño y clóset
- Terraza techada
- Terraza
- Área de lavado
- Estacionamiento techado Capacidad 1 vehículo
- Cocina integral
- Horno
- Campana
- Parrilla eléctrica
- Clóset vestido
- Calentador
- Aires acondicionados
- Cancelería anti huracán
- Fijos de cristal para regaderas
- Luces LED con sistema inteligente
¡Hola!
¡Hola! ¿en qué te podemos ayudar?
Solicitar información Agregar a favoritoso llamarnos 999 635 81 00
Busca propiedades similares
Propiedades sugeridas
-
Venta1 Planta
2 Recámaras$3,450,000
Notas sobre Casa en Campocielo, mod. One Floor 2 hab
-
Venta2 Plantas
4 Recámaras$3,355,000
Notas sobre Residencia en Zensia, mod. D
-
Preventa2 Plantas
3 Recámaras$2,999,000
Notas sobre Residencia en Zensia, mod. B
-
Venta2 Plantas
2 Recámaras$3,100,000
Notas sobre Townhouse en Yaax-beh, mod. 2 habs
-
Venta2 Plantas
2 Recámaras$3,189,000
Notas sobre Departamento en OMH, mod. 2 hab en planta baja
-
Venta2 Plantas
2 Recámaras$3,049,000
Notas sobre Departamento en OMH, mod. 2 hab en planta alta
-
Preventa2 Plantas
3 Recámaras$3,600,000
Notas sobre Casa en Oasis Cholul, mod. 195
-
Venta1 Planta
2 Recámaras$3,100,000
Notas sobre Departamento en Nütuuk, mod. 2 hab
-
Preventa2 Plantas
3 Recámaras$3,030,000
Notas sobre Casa en Cumbres, mod. B
-
Preventa2 Plantas
3 Recámaras$3,355,000
Notas sobre Casa en Cumbres, mod. E
-
Preventa1 Planta
1 Recámara$3,410,000
Notas sobre Departamento en Nuara, mod. 1 hab
-
Venta1 Planta
2 Recámaras$3,390,000
Notas sobre Departamento Slaka Santa Gertrudis, mod. C
-
Venta2 Plantas
3 Recámaras$3,150,000
Notas sobre Townhouse en Yaax-beh, mod. 3 habs
-
Venta2 Plantas
3 Recámaras$3,590,000
Notas sobre Casa en Nadira, mod. Nara 63
-
Venta1 Planta
1 Recámara$3,000,000
Notas sobre Departamento en Ment, mod. 1 hab
-
Venta1 Planta
1 Recámara$3,026,027
Notas sobre Departamentos en Casa Elite, Cabo Norte, mod. B
-
Venta2 Plantas
2 Recámaras$3,245,000
Notas sobre Departamento en Temozón 53, mod. D1
-
Preventa2 Plantas
3 Recámaras$3,480,000
Notas sobre Residencia en Zensia, mod. J
-
Preventa1 Planta
2 Recámaras$3,445,572
Notas sobre Departamento en Tarento Temozón, mod. Apulia
-
Preventa1 Planta
3 Recámaras$3,601,000
Notas sobre Casa en Cumbres, mod. H
-
Preventa1 Planta
1 Recámara$3,227,313
Notas sobre Departamento en Camporal Condos, mod. A
-
Preventa2 Plantas
1 Recámara$2,985,000
Notas sobre Departamento en Erudita, mod. Master Suite
-
Preventa1 Planta
2 Recámaras$3,150,000
Notas sobre Casa en Vivanta, mod. 29
-
Preventa1 Planta
1 Recámara$3,031,522
Notas sobre Departamentos en Vivero, mod. 1 hab
-
Venta2 Plantas
3 Recámaras$3,247,000
Notas sobre Casa en Praderas del Mayab, mod. Min
-
Venta1 Planta
2 Recámaras$3,606,000
Notas sobre Casa en Bosques de Cholul, mod. Amelia
-
Venta2 Plantas
2 Recámaras$3,155,000
Notas sobre Casa en Bosques de Cholul, mod. Bianca
-
Venta2 Plantas
3 Recámaras$3,626,000
Notas sobre Casa en Bosques de Cholul, mod. Davalia
-
Preventa1 Planta
2 Recámaras$3,100,000
Notas sobre Departamento en Adia Temozón, mod. 2 habitaciones
-
Preventa1 Planta
2 Recámaras$3,190,000
Notas sobre Departamento en Taliva, mod. 2 hab
-
Preventa1 Planta
2 Recámaras$3,585,000
Notas sobre Departamento en Ninfa, mod. Duplex garden
-
Venta2 Plantas
1 Recámara$3,316,000
Notas sobre Departamento en Bona, mod. Rooftop 1 hab
-
Venta2 Plantas
2 Recámaras$3,280,000
Notas sobre Townhouses Alexa, Cholul
-
Preventa1 Planta
1 Recámara$3,229,000
Notas sobre Departamento en Elevate Luxury, mod. Alton
-
Venta2 Plantas
3 Recámaras$3,369,000
Notas sobre Townhouse en Zennova Dzityá
-
Preventa1 Planta
3 Recámaras$3,349,000
Notas sobre Departamento en Teana, mod. 3 habitaciones
-
Preventa1 Planta
3 Recámaras$3,185,251
Notas sobre Departamento en Lahún Cholul, mod. A
-
Preventa1 Planta
1 Recámara$3,300,000
Notas sobre Departamento en Álamo Montebello, mod. D
-
Preventa1 Planta
2 Recámaras$2,990,000
Notas sobre Departamentos Palma de Mallorca Cholul, mod. 2 hab
-
Preventa2 Plantas
3 Recámaras$3,200,000
Notas sobre Casas en Senda Real Conkal, mod. Madrid
-
Preventa1 Planta
2 Recámaras$2,995,000
Notas sobre Departamento en Monarca, 2 habs
-
Venta1 Planta
2 Recámaras$3,150,000
Notas sobre Departamentos en Hexán Chuburná, mod. A
-
Preventa2 Plantas
1 Recámara$3,199,999
Notas sobre Departamento en Jacinto, mod. Boa
-
Preventa1 Planta
2 Recámaras$3,380,000
Notas sobre Departamento en Mathea Temozón, mod. C
-
Venta1 Planta
2 Recámaras$3,149,000
Notas sobre Casa en Aldoria, mod. Aurea
-
Venta2 Plantas
2 Recámaras$3,112,000
Notas sobre Casa en Aldoria, mod. Anara
-
Preventa2 Plantas
3 Recámaras$3,580,500
Notas sobre Casa en Aldoria, mod. Cinna
-
Preventa2 Plantas
3 Recámaras$2,990,000
Notas sobre Villa en Sauces Dieciséis, mod. 3
-
Preventa2 Plantas
3 Recámaras$3,525,000
Notas sobre Residencia en Morera, mod. RS-168
-
Preventa2 Plantas
2 Recámaras$3,050,000
Notas sobre Townhouses en Okté Temozón
-
Preventa2 Plantas
3 Recámaras$3,550,000
Notas sobre Casa en Naia, mod. Zaci
-
Venta2 Plantas
3 Recámaras$3,150,000
Notas sobre Casa en Camelia, mod. Caoba 36
-
Preventa1 Planta
1 Recámara$3,340,000
Notas sobre Departamento en Cyro, mod. B
-
Preventa1 Planta
2 Recámaras$3,124,000
Notas sobre Departamento en Bosco, mod. 2 habs
-
Preventa1 Planta
2 Recámaras$3,519,000
Notas sobre Departamento en Bosco, mod. 2 habs flex
-
Preventa1 Planta
2 Recámaras$3,200,000
Notas sobre Departamento en Kalea Condos, mod. A
-
Venta2 Plantas
1 Recámara$2,999,000
Notas sobre Departamento en Sabbia Sodzil Norte, mod. Loft
-
Preventa2 Plantas
2 Recámaras$3,150,000
Notas sobre Departamento en Alemán City Homes, mod. A
-
Preventa2 Plantas
2 Recámaras$3,555,200
Notas sobre Departamento en Alemán City Homes, mod. B
-
Preventa1 Planta
2 Recámaras$3,270,000
Notas sobre Departamento en Dithea Temozón, mod. B
-
Preventa1 Planta
3 Recámaras$3,600,000
Notas sobre Residencia en Blanca, mod. I
-
Preventa1 Planta
2 Recámaras$3,605,000
Notas sobre Departamento en Plantar Dzityá, mod. Frutos
-
Preventa2 Plantas
3 Recámaras$3,320,000
Notas sobre Casa en Santa Loreto, mod. B
-
Preventa2 Plantas
2 Recámaras$3,420,000
Notas sobre Casa en Santa Loreto, mod. C
-
Preventa2 Plantas
3 Recámaras$3,625,000
Notas sobre Casa en Santa Loreto, mod. D
-
Preventa2 Plantas
3 Recámaras$3,640,000
Notas sobre Casa en Santa Loreto, mod. E
-
Preventa2 Plantas
3 Recámaras$3,440,000
Notas sobre Casa en Santa Loreto, mod. G
-
Preventa1 Planta
2 Recámaras$3,480,000
Notas sobre Departamento en Galerías, mod. D
-
Preventa1 Planta
2 Recámaras$3,100,000
Notas sobre Departamentos en Chaltún Living, mod. 2
-
Preventa1 Planta
1 Recámara$3,099,000
Notas sobre Departamento en Bentro Benito Juárez Norte, mod. One Plus
-
Preventa1 Planta
2 Recámaras$3,195,000
Notas sobre Departamento en Bentro Benito Juárez Norte, mod. Doble
-
Preventa1 Planta
2 Recámaras$3,250,000
Notas sobre Departamento en Amé 34 Montes de Amé, mod. Pico
-
Preventa2 Plantas
1 Recámara$3,300,000
Notas sobre Departamento en Almaera-Residencial del Mayab Temozón, mod. Serena
-
Preventa1 Planta
1 Recámara$3,549,000
Notas sobre Estudio en Zibá Temozón, mod. Barg
-
Preventa1 Planta
2 Recámaras$3,140,000
Notas sobre Departamento en Canea Temozón, mod. 2 habitaciones
-
Preventa1 Planta
1 Recámara$3,045,000
Notas sobre Departamento en Hatha, mod. Ventho - 1 hab
-
Preventa1 Planta
2 Recámaras$3,500,000
Notas sobre Departamento en Niva San Ramón Norte, mod. Opal
-
Preventa1 Planta
1 Recámara$3,009,500
Notas sobre Departamento en Edera Altabrisa, mod. B
-
Preventa1 Planta
1 Recámara$3,186,000
Notas sobre Departamento en Edera Altabrisa, mod. E-F
-
Apartado2 Plantas
3 Recámaras$3,500,000
Notas sobre Casa en Bosques de Conkal, mod. 96
-
Venta2 Plantas
3 Recámaras$3,600,000
Notas sobre Casa en Bosques de Conkal, mod. 100
-
Preventa1 Planta
3 Recámaras$3,300,000
Notas sobre Casa en Praderas del Mayab, mod. Ciricote
-
Venta1 Planta
1 Recámara$3,310,000
Notas sobre Departamento en Central Centro, mod. Maní
-
Preventa2 Plantas
3 Recámaras$3,121,000
Notas sobre Casa en Gran Bosco Conkal, mod. B9-167
-
Preventa1 Planta
3 Recámaras$3,290,000
Notas sobre Casa en Gran Bosco Conkal, mod. D10-149
-
Preventa2 Plantas
2 Recámaras$3,020,000
Notas sobre Casa en Gran Bosco Conkal, mod. E11-142
-
Preventa2 Plantas
3 Recámaras$3,583,000
Notas sobre Casa en Gran Bosco Conkal, mod. E11-164
-
Preventa1 Planta
3 Recámaras$3,276,000
Notas sobre Casa en Gran Bosco Conkal, mod. F11-153
-
Preventa1 Planta
2 Recámaras$3,050,000
Notas sobre Departamento en Malta Temozón, mod. A
-
Preventa1 Planta
1 Recámara$3,045,000
Notas sobre Departamento en Aleva 71 Benito Juárez, mod. 1 hab flex
-
Preventa1 Planta
2 Recámaras$3,545,000
Notas sobre Departamento en Aleva 71 Benito Juárez, mod. 2 hab
-
Apartado1 Planta
1 Recámara$3,360,000
Notas sobre Departamento en Prana Montes de Amé, mod. Aura
-
Preventa2 Plantas
3 Recámaras$3,550,000
Notas sobre Casa en Liana Conkal, mod. Arvia
-
Preventa1 Planta
1 Recámara$3,360,000
Notas sobre Departamento Oxygen Montes de Amé, mod. Breeze Flex
-
Preventa1 Planta
1 Recámara$3,355,136
Notas sobre Departamento en María-Campestre, mod. D
-
Preventa1 Planta
1 Recámara$3,409,503
Notas sobre Departamento en María-Campestre, mod. E
-
Preventa1 Planta
1 Recámara$3,016,314
Notas sobre Departamento en María-Campestre, mod. F
-
Preventa1 Planta
2 Recámaras$3,199,000
Notas sobre Departamento en Emuná Temozón, mod. 2 hab
-
Preventa1 Planta
1 Recámara$3,398,669
Notas sobre Departamento en Armorán Plaza -Temozón Norte, mod 1 hab
-
Preventa1 Planta
2 Recámaras$3,275,000
Notas sobre Casa en Naia, mod. Suytún
-
Preventa1 Planta
1 Recámara$3,100,000
Notas sobre Departamento en Northe24 Montecristo, mod. A1 Flex
-
Preventa1 Planta
1 Recámara$3,167,400
Notas sobre Departamentos en Nahla, Cabo Norte, mod. A1
-
Preventa1 Planta
2 Recámaras$3,290,760
Notas sobre Departamento en Soha - Zona Country, mod. Duplex
-
Preventa2 Plantas
2 Recámaras$3,257,250
Notas sobre Townhouse en Alian Real Montejo, mod. 2 hab
-
Preventa2 Plantas
3 Recámaras$3,348,150
Notas sobre Townhouse en Alian Real Montejo, mod. 3 hab
-
Venta2 Plantas
3 Recámaras$3,390,000
Notas sobre Residencia en Zensia, mod. H
-
Preventa1 Planta
2 Recámaras$3,360,000
Notas sobre Departamento en Taureno - San Antonio Cucul, mod 2 habs
-
Preventa1 Planta
2 Recámaras$3,500,000
Notas sobre Departamento en Andera, mod. 2 habs
-
Preventa1 Planta
2 Recámaras$3,400,000
Notas sobre Departamento en Lusso Temozón, mod. Catania
-
Preventa1 Planta
2 Recámaras$3,250,000
Notas sobre Departamentos en Arvum San Ramón Norte, mod. B
-
Preventa1 Planta
2 Recámaras$3,600,000
Notas sobre Departamentos en Arvum San Ramón Norte, mod. C
-
Venta1 Planta
2 Recámaras$3,250,000
Notas sobre Casa en Yaxlum Conkal, mod. Tuuk 61